Screenshot 2025 10 06 182529

ESQVA THE HEAVENS OKINAWA - Villa OCEAN

  • Building & Hotel
  • Nakadomari
¥1,350,000,000 USD $8,820,000
  • 4 Bedrooms
  • 1 Bathroom
  • Floor Area: 726 sqm
  • Land Area: 581.59 sqm

1425-1 Nakadomari, Onna, Okinawa 904-0415

  • Year Built: 2026

ESQVA THE HEAVENS OKINAWA is a luxury villa resort brand born from the desire to create a unique experience that is neither a typical villa nor a hotel. The brand's philosophy, encapsulated by the acronym ESQVA, is centerer on creating a utopian experience:

Eternal: A longing for unchanging nature.

Stirring: A special, heart-moving impression.

Quietude: Deep healing and peace brought by tranquillity.

Verve: An upwelling of passion and vitality for the future.

Arcadia: A supreme time reminiscent of an ideal land.

The resort aims to deliver ultimate comfort and unparalleled impression on a unique hilltop, surrounded by the emerald, green sea and a lush primeval forest.

Location and Access

The resort is situated on a private, untouched hilltop in Onna Village, Okinawa, ensuring privacy and an immersive natural experience. It is designed to offer a sense of tranquillity where one can feel the breath of nature without visual obstruction. The location is a 46-minute drive (approximately 45.2 km) from Naha Airport and just a 6-minute drive from the Ishikawa Interchange.

Key Features and Amenities

  • Magnificent Views: The property boasts spectacular panoramic views of the coral reef sea and primeval forest. Large windows are used in every room to frame the scenery and create a sense of unity with nature.
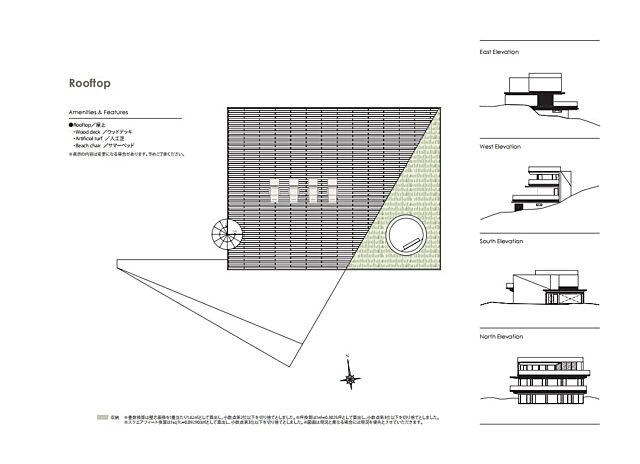
  • Luxurious Design: The villas feature an international-standard spatial design with over 650 m2 of floor space and a living/dining/kitchen area exceeding 55 tatami mats. The architecture is meticulously calculated for beauty from every angle, with high-quality, curated interiors.
  • Wellness Facilities: Guests have access to a comprehensive set of wellness facilities, including an infinity pool, magma sauna, cold bath, gym, and karaoke room.
  • Activities: The location is ideal for enjoying a variety of Okinawan activities such as cruising, scuba diving, and playing golf at prestigious local courses.

Services and Hospitality

  • Butler Support: A full range of hospitality services is provided by butlers with experience at premier international hotels. Services include airport transfers, meal preparation, and arranging for private chefs, beauty treatments, massages, gym trainers, cruises, and golf course reservations.
  • Dining Options: Various dining styles are available:
    • Self-Cooking: Guests can purchase ingredients to cook and enjoy a party-style meal.
    • Fly Chef: A private dining service where a chef specializing in the guest's preferred cuisine can be invited from anywhere in Japan.
    • Chef's Dining: A chef can prepare poolside BBQs and meals featuring Okinawan ingredients.
    • Restaurant Reservations: The staff can recommend and book nearby restaurants.
  • Owners' Support: Owners have access to a dedicated website and app for booking stays, arranging exclusive paid services, gifting stays to others, and receiving real-time chat support.

The building completion is scheduled for late March 2026.

Features

  • New Construction
  • Gym
  • Pool

Land & View

  • Ocean View

Utilities

  • Water Supply at Street
  • Sewer Service at Street
  • Septic Sewer System

We’ll help you find your dream home.

Contact our multilingual team today and start your home owner journey in Japan.

Enquire Now
H2 20 Year Seal